Информационно технический ресурс

"ТЕХНАВИГАТОР"

  © ИТР «Технавигатор» Информационно-технический ресурс   https://tehnavigator.ru    tehnavigator@yandex.ru  +7(916) 102-82-00

 

 © ИТР «Технавигатор» Информационно-технический ресурс  https://tehnavigator.ru    tehnavigator@yandex.ru   +7(916) 12-82-00

   Вы авторизованы как:   гость

   Зарегистрируйтесь

Tehnavigator.ru | Технавигатор - Строительство, реконструкция, ремонт, проектирование объектов теплоснабжения, архив технической документации
Монтаж паровых и водогрейных котлов под ключ

Монтаж паровых и водогрейных котлов под ключ

Расширение РТС Видное. Котел ПТВМ-60 №4

Расширение РТС Видное. Котел ПТВМ-60 №4

Замена ячейки котла ПТВМ-50 на ПТВМ-60

Замена ячейки котла ПТВМ-50 на ПТВМ-60

Металлоконструкции котла ПТВМ-60

Металлоконструкции котла ПТВМ-60

Газовый ввод котлов ПТВМ-60 №1-4

Газовый ввод котлов ПТВМ-60 №1-4

Машзал котлов ПТВМ-60 №1-4

Машзал котлов ПТВМ-60 №1-4

РТХ дизтоплива 2х700м3 для ПТВМ-60 №1-4

РТХ дизтоплива 2х700м3 для ПТВМ-60 №1-4

Тепловая изоляция конвектива ПТВМ-100

Тепловая изоляция конвектива ПТВМ-100

Эстакада дизтоплива РТС Пенягино

Эстакада дизтоплива РТС Пенягино

Строительство котельных малой мощности

Строительство котельных малой мощности

Строительство модульных котельных

Строительство модульных котельных

Газопровод котла ПТВМ-50. Монтаж

Газопровод котла ПТВМ-50. Монтаж

Картика слайда 13

Воздушный тракт котла ПТВМ-50. Монтаж

Водогрейный котел КВГМ-10. Монтаж

Водогрейный котел КВГМ-10. Монтаж

 

ТЕХНАВИГАТОР - строительство, реконструкция, ремонт, проектирование объектов теплоснабжения:

 

Главная Техническая   Проектная   Сметная Нормативная Библиотека Фото-видео Новости Контакты
 

 


 

Проектная и рабочая документация

 

Автоматизация Автоматизация 

Архитектурно-строительные решения Арх-строит. решения

Водопровод и канализация Водопровод и канализация

Газоснабжение Газоснабжение

Генплан Генплан

Дендрология Дендрология

Диспетчеризация Диспетчеризация

Дымовые трубы Дымовые трубы

ИРД ИРД 

Котельные установки Котельные установки

Конструкции железобетонные Констр. железобетонные

Конструкции металлические Констр. металлические

Мероприятия ГО и ЧС Мероприятия ГО и ЧС

Обследование конструкций Обследование конструкций

Отопление и вентиляция Отопление и вентиляция

Охрана окружающей среды Охрана окр. среды

ПОС ПОС

ППР ППР

Прочие проекты Прочие проекты

Реконструкция котельных Рек-ия котельных  

Средства связи Средства связи

Тепловые пункты Тепловые пункты 

Тепловые сети Тепловые сети 

Тепломеханические решения Тепломехани. решения

Типовые проекты Типовые проекты

Электроснабжение Электроснабжение

Энергоэффективность Энергоэффективность

Подготовка заключений экспертизы проектной документации Реестр лиц, аттестованных на право подготовки заключений экспертизы проектной документации и (или) экспертизы результатов инженерных изысканий по состоянию на 22.09.2025г.

Подробнее...
 Тор-10 страниц сайта

Тор-10 страниц сайта


Части 1-3. Примеры проектов производства работ

Часть 1. Технологические карты по сварке | РДС, РАДС, РАД

Формирование Приемо-сдаточной документации

Акт формы 14, 14а, 15, 16 по газу

Индексы изменения сметной стоимости cтроительства на 4 кв. 2025г.

Сводная ведомость объемов, спецификация материалов и оборудования, дефектная ведомость

Автокран Liebherr LTM грузовые технические характеристики

Диспетчеризация малых котельных и тепловых пунктов рабочая проектная документация

Условные обозначения сталей | Маркировка металлических материалов

График производства работ | Примеры составления графиков

 




Тор-10 популярных запросов


Пример ППР

Проектная и Рабочая документация

Образец акт о приёмке газоиспользующей установки оборудования

-АС архитектурно-строительные решения

Процентовка это

РТС КТС МК

ИТД | Исполнительно-техническая документация

Состав пакета ИРД

Допуски к работам

Проект производства работ образец

 

 

ИТР ТЕХНАВИГАТОР

 

 

 

 

Полезная информация!

 

Состав проекта для ликвидации малых котельных ОАО "МОЭК"

 

 

 

 

 

 

 

Технавигатор - это библиотека электронной проектной,сметной, нормативно-технической документации,литературы в области промышленной теплоэнергетики (районные тепловые станции (РТС), малые квартальные (КТС) и модульные котельные (МК), центральные и индивидуальные тепловые пункты (ЦТП, ИТП) и все что связано с теплоснабжением, газоснабжением

ПРОЕКТНАЯ ДОКУМЕНТАЦИЯ

Объекты реконструкции | Схемы теплоснабжения

         

          Выбор варианта схемы теплоснабжения объекта: системы централизованного
теплоснабжения от котельных, крупных и малых тепловых и атомных электростанций
(ТЭЦ, ТЭС, АЭС) либо от источников децентрализованного теплоснабжения (ДЦТ)
-автономных, крышных котельных, от квартирных теплогенераторов производится
путем технико-экономического сравнения вариантов. Принятая к разработке в проекте
схема теплоснабжения должна обеспечивать: нормативный уровень
теплоэнергосбережения; нормативный уровень надежности, определяемый тремя
критериями: вероятностью безотказной работы, готовностью (качеством)
теплоснабжения и живучестью; требования экологии; безопасность эксплуатации.

 

      Подробнее в СНиП 41-02-2003 (Раздел 6 Схемы теплоснабжения и тепловых сетей) 

 В зависимости от источника теплоснабжения различаются схемы и оборудование  котельной или местного теплового пункта здания, откуда осуществляется подача теплоты к инженерным системам, их управление и контроль.

 

1.  Реконструкция малой котельной по адресу: Цветной бульвар 21 стр13

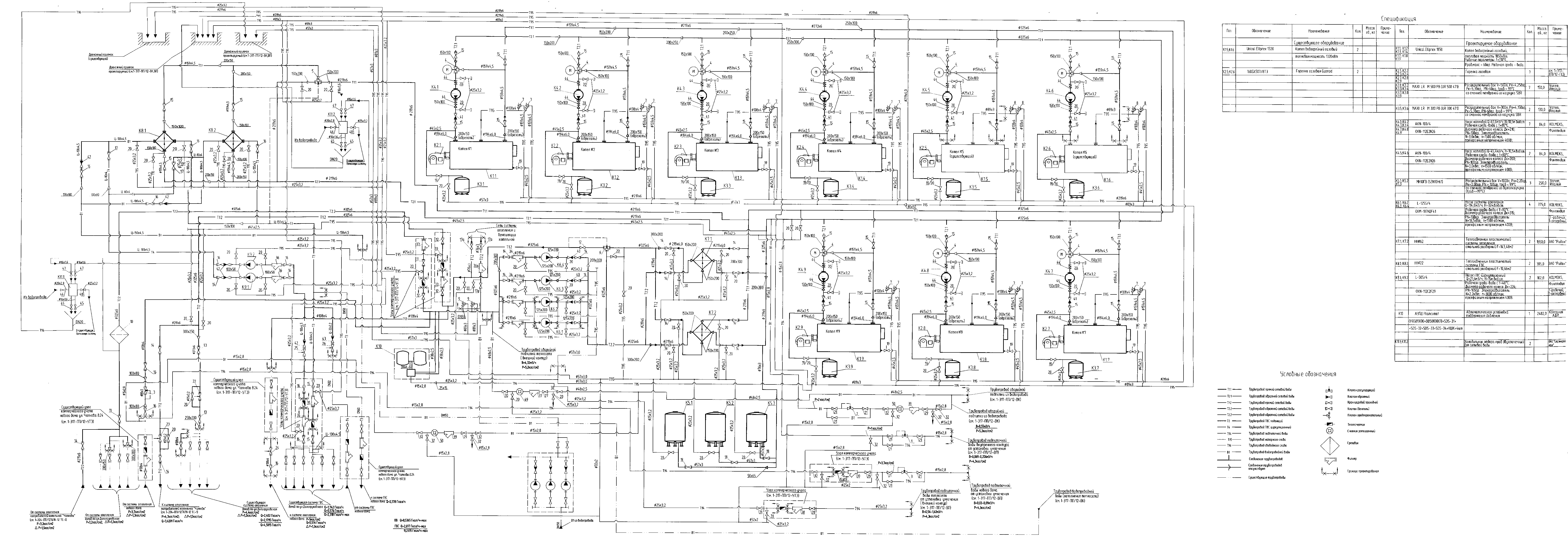
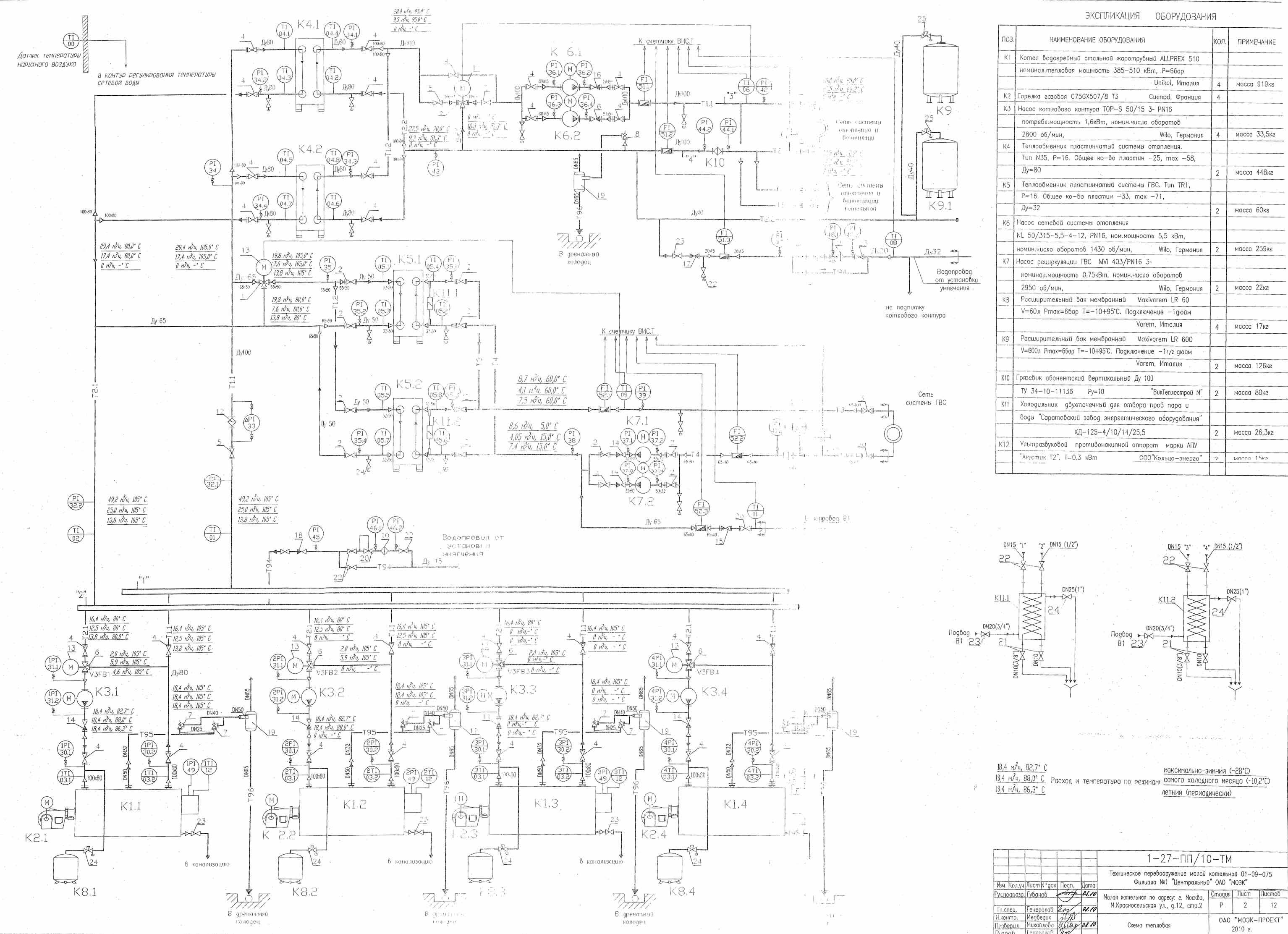
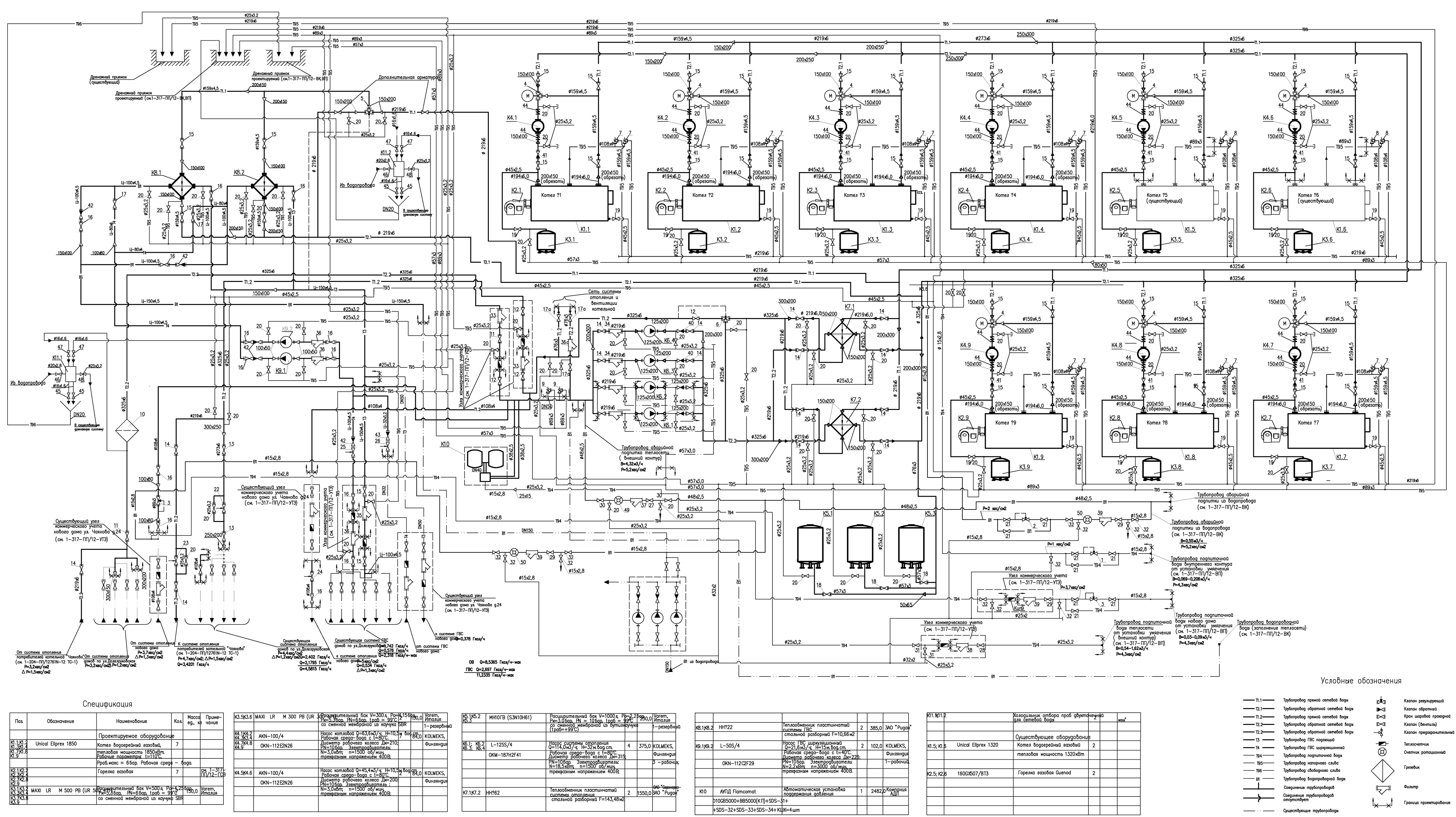
2.  Техническое перевооружение котельной М. Красносельская д.12 

3.  Техническое перевооружение КТС "Мелитопольская"

4.  Модернизация котлов КВГМ-50-150 РТС "Внуково"

5. Техническое перевооружение малой котельной по адресу: Новослободская ул., д.3, стр.6
6.  Техническое перевооружение котельной по адресу: Долгоруковская, д.33, стр. 13
7. Техперевооружение малой котельной "Щербинка" по адресу: Типографсая ул., д. 5б
8.Техническое перевооружение малой котельной "Красная гвоздика"
9. Реконструкция малой котельной по адресу: ул. С. Радонежского, д. 9/8, стр. 3
10. Техперевооружение мазутного хозяйства КТС "Отрадное" на дизтопливо
11. Техперевооружение малой котельной по адресу: Долгоруковская, д.33, стр.13

Постановление Правительства РФ от 22 февраля 2012 г. N 154 "О требованиях к схемам теплоснабжения, порядку их разработки и утверждения" (с изменениями и дополнениями)   Подробнее ...

Реклама на Технавигаторе  

 

 

ПЕРЕЧЕНЬ исполнительной документации, предъявляемой генеральным подрядчиком (подрядчиком) приемочной комиссии  по  завершении  строительством  (монтажом) объектов в ПАО Мосэнерго

 

Архив технической документации на ИТР "Технавигатор"

  Техническая документация

Проектная документация

Сметная документация

Нормативная документация

 

Акты Акты

Аттестация Аттестация

Ведомости объемов Ведомости объемов 

Графики работ Графики работ

Доверенности Доверенности

Договора Договора

Должностные инструкции Должностные инстр.

Журналы работ Журналы 

Инженерные расчеты Инженерные расчеты

Исполнительная документация Исполнительная док 

Методические документы Методические док

Ордера земляных работ Ордера земляных работ

Отзывы Отзывы 

Паспорта, сертификаты Паспорта, сертификаты 

Письма Письма

Протоколы Протоколы 

Приказы Приказы 

Программы работ Программы работ

Производственные инструкции Производств. инстр.

Разрешительные документы Разрешительные док

Режимные карты Режимные карты 

Сварка и металлы Сварка и металлы

Советы мастеров Советы мастеров

СРО,лицензии СРО,лицензии

Система качества Система качества

Тендерная документация Тендерная документация

Технические отчеты Технические отчеты 

Технологии работ Технологии работ

Технологические карты Технологические карты

Технические задания Технические задания

Характеристики кранов Характеристики кранов

 

Автоматизация Автоматизация 

Архитектурно-строительные решения Арх-строит. решения

Водопровод и канализация Водопровод и канализация

Газоснабжение Газоснабжение

Генплан Дендрология

Генплан Генплан

Диспетчеризация Диспетчеризация

Дымовые трубы Дымовые трубы

ИРД ИРД 

Котельные установки Котельные установки

Конструкции железобетонные Констр. железобетонные

Конструкции металлические Констр. металлические

Мероприятия ГО и ЧС Мероприятия ГО и ЧС

Обследование конструкций Обследование конструкций

Отопление и вентиляция Отопление и вентиляция

Охрана окружающей среды Охрана окр. среды

ПОС ПОС

ППР ППР

Прочие проекты Прочие проекты

Реконструкция котельных Рек-ия котельных  

Средства связи Средства связи

Тепловые пункты Тепловые пункты 

Тепловые сети Тепловые сети 

Тепломеханические решения Тепломехан. решения

Типовые проекты Типовые проекты

Электроснабжение Электроснабжение

Энергоэффективность Энергоэффективность

 

 

ВНИР ВНИР  

ГСН ГСН

ГЭСН ГЭСН  

ГЭСНм ГЭСНм 

ГЭСНп ГЭСНп  

ГЭСНр ГЭСНр

ЕНИР ЕНИР

Индексы пересчета Индексы пересчета

Коммерческие предложения предложения Ком. предложения

МДС МДС 

РСН РСН

РСНм РСНм 

РСНпнр РСНпнр

Сметы Сметы 

ФЕР ФЕР

Ценники пир Ценники пир 

Ценники пнр Ценники пнр

 

Ведомственные нормы Ведомственные нормы

Ведомственные производственные нормы расхода материала Ведомств.произв.НРМ

Ведомственныенормы проектирования Ведомств.нормы проект.

Ведомственные руководящие документы Ведомств.руковод.док

Ведомственные своды правил Ведомств.своды правил

Ведомственные строительные нормы Ведомств.строит. нормы

ГОСТ ГОСТ

Законы и постановления Законы и постановления

Методические рекомендации Методические рекоменд.

Методические указания Методические указания

Нормы противопожарной безопасности Нормы противопож.безоп.

Нормы технологического проектирования Нормы технологич.проект.

Нормы расхода материалов Нормы расхода материал.

ОСТ ОСТ

Письма НТД Письма НТД

Положения Положения

Правила Правила

Правила безопасности Правила безопасности

Правила по охране труда Правила по охране труда

Правила пожбезопасности Правила пожбезопасности

Приказы НТД Приказы НТД

Прочие документы Прочие документы

Реставрационные нормы и правила Реставр. нормы и правила

Руководящие документы Руководящие документы

Руководящие документы в строительстве Руководящие док. в стр-ве

Санитарные правила Санитарные правила

Своды правил Своды правил

СНиПы и пособия СНиПы и пособия  

Строительные нормы Строительные нормы

Технические условия Технические условия

Типовые инструкции охраны труда Типовые инстр.охр.труда

 

Top.Mail.Ru Анализ сайта Архив технической проектной сметной нормативной документации Яндекс.Метрика

Вверх